ABout the community
Our partner organization, Nested Savings, has been working in Yumbe, Uganda for nearly 5 years. Yumbe is in the northern region of Uganda almost to the South Sudan Border. By February 2016, Nested Savings raised enough funding to renovate an old building into a 50-seater community library (CL). They purchased books of all subjects and all grade levels for the library. The CL is equipped with solar power so that students can study till late.
To date, the CL has recorded 15,000 visits, and the number only continues to grow. Students are beginning to come from farther distances (nearby villages and towns) to utilize the place. These trends have now made it necessary to consider building a larger space.
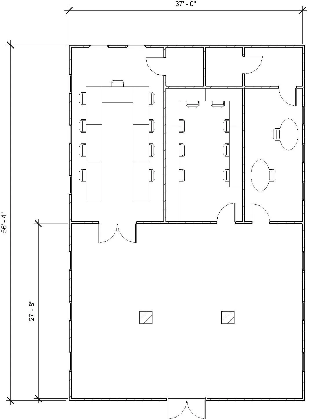
In light of the above our specific need is to construct a building that can ideally, hold up to 100 persons at a time. Nested Savings owns one plot of land (50ft x 100ft). The existing CL sits on about a third of the land. We would like to design a 50-60-seater library space, a 20-30-seater meeting room, a computer lab for about 20 people at a time, and an office or two. The facility will have to continue to be solar powered since electricity remains a challenge for the community. The new Learning Center will be sustained from fees from the internet café and a printing center which will help the local government and schools print necessary documents.
our local partner: Nested savings
It was jointly decided in 2015 with all stakeholders that increasing community resources is crucial to the community’s success. This was done in tandem with a livelihood improvement project that was also launched in 2015.
A lot has been done by the central government by way of community livelihood projects to raise the income level of the household but literacy rates indicate these initiatives have yet to show any significant impact.
As an organization, Nested Savings piloted the idea of a community learning center in 2016 by renovating an old building into a single-room library that could hold 40-50 persons at a time. In addition to purchasing books with donations from private sponsors, the facility received book donations from the Yumbe district local government and Kampala International University.
In the face of constant attempts by the property owners to hike rent, they undertook another fundraising exercise to purchase land and built a smaller facility that can hold about 20 people at a time. While this has eliminated rent and made the project more sustainable, it is still lacking in terms of capacity and resources. The library does not have adequate space to display all books in our inventory or host the large number of students that attempt to access it each week. It also has a weak solar system as its primary energy source, resulting in occasional power outages that disrupt learning.
In recent times, primary and secondary school students have started traveling from neighboring towns and villages to use the facility. The influx of refugees from South Sudan has also created a new target segment since 2016 that we have been unable to cater to so far. Current users have reported improvements in school performance as evidenced by higher exam scores for district, regional, and national level exams.
